ÖNCESİ

SONRASI

ÖNCESİ

SONRASI

ÖNCESİ

SONRASI

ÖNCESİ

SONRASI

ÖNCESİ

SONRASI

ÖNCESİ

SONRASI

ÖNCESİ

SONRASI

Neden Kat Planı Eklenmelidir?

GÖRSELLEŞTİRMEYE İZİN VERİN

Ticari müşterileriniz, alanı nasıl kullanabileceklerini görselleştirmek için bir kat planı görmek isterler.

LİSTENİZDE GEÇİRİLEN SÜREYİ ARTTIRIN

Kat planına sahip olarak ilanınıza olan ilgiyi %30 oranında artırın.

DAHA FAZLA MÜŞTERİ OLUŞTURUN

Alıcıların %90'ından fazlası, kat planı olan bir ilana bakmak için daha fazla zaman harcama eğilimindedir.

İLGİYİ ARTIRMAK

5 kişiden 1'i, kat planı içermeyen ticari ilanınızı tamamen görmezden gelecektir.

24 SAAT

2D SİYAH & BEYAZ

2D siyah beyaz kat planı, ticari listeniz için mükemmel bir seçenektir. Potansiyel müşterilerinize düzen hakkında kolay bir anlayış sağlamak için net ve basit bir kat planıdır.

2D TAM RENKLİ

Alıcıların 2D tam renkli bir kat planıyla bir ofis alanını veya gelecekteki yenilemelerin potansiyelini nasıl düzenleyebileceklerini görmelerine yardımcı olun. Bu ayrıca, aksi takdirde basit bir düzene görsel ilgi unsuru daha ekler.

24 SAAT

24 SAAT

2D DOKULU

2D dokulu bir kat planı kullanarak, yalnızca ticari mülkün düzenini sergilemekle kalmaz, aynı zamanda halılar ve fayanslar gibi dokulu döşemelerin yanı sıra mevcut mobilyaları da sergileyebilirsiniz. Bu özellikleri vurgulayarak, potansiyel alıcınıza veya kiracınıza çok daha fazla ayrıntı sunacaktır.

DAHİL

3D TAM RENKLİ

3 boyutlu tam renkli bir zemin planına sahip olmak, alıcıya veya kiracıya alanda yürümeye benzer bir görselleştirme sunacaktır. Zemin geçişleri ve kapının hangi yöne doğru açıldığı gibi önemli unsurları göstermek, gerçekten de bu en kaliteli müşterileri çekmede yardımcı olabilir.

DAHİL

24 SAAT

24 SAAT

ÖZEL KAT PLANLARI ŞABLONLARI

"Sayfadan fırlayacak" ve benzersiz görünecek bir kat planı mı arıyorsunuz? Özel kat planı hizmeti, şablon seçeneklerimizde bulunmayan belirli tercihleri ​​sağlamak isteyen acenteler veya geliştiriciler içindir. Lütfen bu işleri Özel Teklif bölümümüz aracılığıyla gönderin.

DAHİL

GELİŞTİRME SAHASI PLANLARI

Açık ve çekici geliştirme sahası planları oluşturmak, planı başarıyla satmanın ilk adımıdır. Ticari gayrimenkul genellikle geliştirilmemiş sahaların satışını içerir, bu nedenle ticari geliştirmeleri ne kadar büyük veya küçük olursa olsun satmak için Geliştirme Saha Planı yeniden çizim hizmetimizi kullanın. Lütfen özel bir teklif gönderin.

DAHİL

24 SAAT

MÜŞTERİLER

SanalSahneleme.com dünya çapında önde gelen şirketler tarafından güvenilir ve itibar gören bir markadır.

Müşterilerimiz Ne Diyor?

"Kaliteli fotoğraflar yükleyebildiğimde sonuçlar harikaydı."

User

Çiğdem Güler

"Sonuçlar beklediğimden bile daha iyiydi. Değişiklik olsun diye etkilenmek güzel! "

User

Emrah Engin

"Seçebileceğiniz o kadar çok harika resim var ki! "

User

Fuat Dünger

Sıkça Sorulan Sorular

Fotoğraflarınızı zamanında teslim etmek için haftada 7 gün, 24 saat çalışan küresel bir uzman ekibimiz var.

NELER YAPIYORUZ

ÖNCESİ

SONRASI

GÖRÜNTÜ GELİŞTİRME

Emlak fotoğraflarınızı düzenlemek için mükemmeldir, böylece ilanınızı birinci sınıf, rötuşlanmış ve profesyonel görünümlü fotoğraflarla sunabilirsiniz.

ÖNCESİ

SONRASI

SANAL SAHNELEME

Ekibimiz, potansiyel alıcılara alanın ne kadar çok yönlü olduğunu göstermek için gayrimenkul fotoğrafçılığına mobilya ekleyebilir.

ÖNCESİ

SONRASI

GÜNDEN ALACA KADAR

Fotoğraf rötuş hizmetimiz, gökyüzünüzü güzel bir alacakaranlık ortamıyla değiştirerek dış mekan mülkünüzün fotoğrafını sıkıcıdan muhteşeme dönüştürecektir.

ÖNCESİ

SONRASI

EŞYA SİLME VE SANAL TEMİZLİK

Fotoğraf düzenleme uzmanlarımız fotoğraflarınızdan istenmeyen öğeleri kaldırabilir.

ÖNCESİ

SONRASI

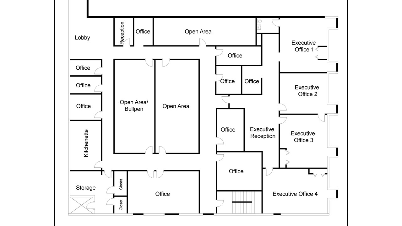
KAT PLANLARI

Çeşitli 2D ve 3D seçenekleriyle sunulan çevrimiçi kat planıyla, potansiyel alıcılara ilanınızı net bir şekilde gösterin.

RENDER'LAR

Çeşitli planlar ve tasarımlar için sunduğumuz render hizmetimizle planları hayata geçirin.

ÖNCESİ

SONRASI

360° GÖRÜNTÜ GELİŞTİRME

İlanınızı yüksek kalitede, rötuşlanmış ve profesyonel 360° görsellerle sunun.

ÖNCESİ

SONRASI

360° SANAL SAHNELEME

Uzman editörlerimizden oluşan ekibimiz, daha önce boş olan bir ilanı canlandırmak için 360° görüntülere gerçekçi mobilyalar ekleyebilir.

ÖNCESİ

SONRASI

SANAL YENİLEMELER

Pahalı tadilatlara girişmeden önce tasarımın nasıl görüneceğini gözünüzde canlandırın.

SANAL TURLAR

Zaman kazandıran tur oluşturma hizmetimizle mülkünüzü 360° fotoğraflar kullanarak her açıdan sergileyin.

İLAN AÇIKLAMASI

Profesyonel yazar ekibimizin, mülkünüz kadar benzersiz metinler oluşturmasına izin verin.

ÖNCESİ

SONRASI

Emlak Videosu

Emlak videolarınız için etkileyici, özgün ve profesyonel anlatımlar!